Condominio de viviendas ubicado en la mejor zona residencial de Fisherton.
Desarrollado en un terreno de 3400 m2 rodeado de arboles y el mejor entorno, con la tranquilidad de una zona residencial y los servicios y amenities de un condominio. Compuesto por dos torres: Torre Celman y Torre Parque.
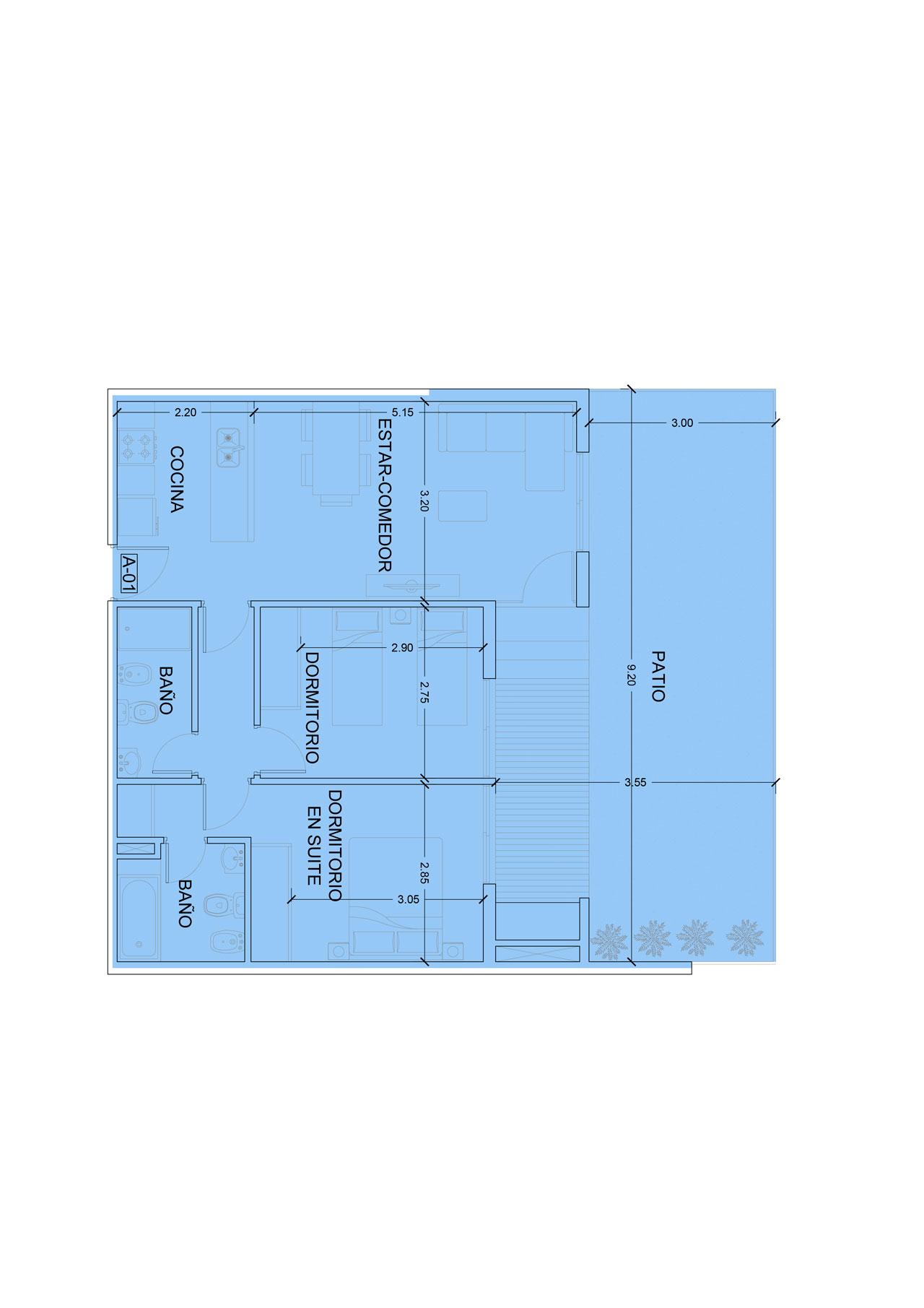
Descripción: Departamentos de 2 y 3 dormitorios con parrillas individuales en cada unidad y cocheras disponibles.
Amenities: Piscina, gimnasio, parrilla, SUM equipado con parrillero, plaza de juegos infantiles, 1000 ms de parque arbolado.
Etapa de obra: 100 % de la demolición, 100% desmonte del terreno, 100% de la ejecución de estructura de hormigón :
Torre 2 : 80% de la ejecución de estructura de hormigón. Torre 1: 80% de instalación eléctrica en etapa de hormigón.
80% de la ejecución del piso estabilizado del ingreso, camino y sector cochera, 60% de la ejecución de los biodigestores.
Materiales acopiados: de albañilería y sanitarios.
Próximamente comenzando etapa de albañilería.

.jpg)